Description
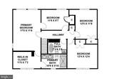
Nestled on a quiet cul-de-sac in the Dufief neighborhood of North Potomac, this beautifully updated Parkwood Model home is a modern gem. The entry hall has a coat closet and a half bath. The formal living room has views of the front yard and opens to the dining room with a bay window overlooking the gorgeous backyard. A Pella sliding glass door provides access to the backyard, and there’s a pantry as you enter the updated kitchen, done by Anthony Wilder Design-Build in 2010. The most notable feature in the kitchen is the infinity low E-glass window above the sink, where backyard views abound. The kitchen has a large island, a 6-burner Viking cooktop and hood, and a desk area tucked along one wall. The main level also has a family room featuring a wood burning fireplace with an earth-toned brick surround, and a door to the attached two-car garage. Upstairs, the primary suite has a vaulted ceiling, backyard views and walk-in closet with custom organizers. The updated primary bathroom has a dual vanity and neutral tiled walk-in shower. The primary suite also connects to an adjacent bedroom or home office. Two additional bedrooms, renovated bathroom and a linen closet are also on this upper level. The main two levels have refinished hardwood floors. In the lower level the recreation room has recessed lights and new carpeting. There’s also a workroom and laundry area, with a washer and dryer and built-in storage shelves. Set on a nearly half acre lot, this home offers a park like backyard that is fully fenced and thoughtfully designed, with frequent visits from local wildlife adding to its natural charm. It also has a shed, rain-collection barrels, a tranquil fish pond, slate-stone patio and walkway, and green space inviting everyday enjoyment. Lush plantings create a serene outdoor haven. Major home improvements include: dishwasher (2025), refrigerator (2023), microwave (2017), oven (2019), disposer (2023), furnace (2020), water heater (2021), washer and dryer (2026), driveway, backyard sidewalk (2025), electrical heavy-up (2014) bathrooms Design by Anthony Wilder (2014), windows (2008), front door (2008), and vinyl siding (2008), roof (2026), newly painted garage floor, fresh paint throughout the house (2026). The Dufief neighborhood is very walkable, with easy access to Dufief Park and Muddy Branch Stream and trails, while modern conveniences are only minutes away. You’ll have to come and see this beautiful home to enjoy all that it has to offer.
-
4BEDS
-
0.45ACRES
-
2BATHS
-
11/2 BATHS
-
2,316SQFT
-
$343$/SQFT
Description
Nestled on a quiet cul-de-sac in the Dufief neighborhood of North Potomac, this beautifully updated Parkwood Model home is a modern gem. The entry hall has a coat closet and a half bath. The formal living room has views of the front yard and opens to the dining room with a bay window overlooking the gorgeous backyard. A Pella sliding glass door provides access to the backyard, and there’s a pantry as you enter the updated kitchen, done by Anthony Wilder Design-Build in 2010. The most notable feature in the kitchen is the infinity low E-glass window above the sink, where backyard views abound. The kitchen has a large island, a 6-burner Viking cooktop and hood, and a desk area tucked along one wall. The main level also has a family room featuring a wood burning fireplace with an earth-toned brick surround, and a door to the attached two-car garage. Upstairs, the primary suite has a vaulted ceiling, backyard views and walk-in closet with custom organizers. The updated primary bathroom has a dual vanity and neutral tiled walk-in shower. The primary suite also connects to an adjacent bedroom or home office. Two additional bedrooms, renovated bathroom and a linen closet are also on this upper level. The main two levels have refinished hardwood floors. In the lower level the recreation room has recessed lights and new carpeting. There’s also a workroom and laundry area, with a washer and dryer and built-in storage shelves. Set on a nearly half acre lot, this home offers a park like backyard that is fully fenced and thoughtfully designed, with frequent visits from local wildlife adding to its natural charm. It also has a shed, rain-collection barrels, a tranquil fish pond, slate-stone patio and walkway, and green space inviting everyday enjoyment. Lush plantings create a serene outdoor haven. Major home improvements include: dishwasher (2025), refrigerator (2023), microwave (2017), oven (2019), disposer (2023), furnace (2020), water heater (2021), washer and dryer (2026), driveway, backyard sidewalk (2025), electrical heavy-up (2014) bathrooms Design by Anthony Wilder (2014), windows (2008), front door (2008), and vinyl siding (2008), roof (2026), newly painted garage floor, fresh paint throughout the house (2026). The Dufief neighborhood is very walkable, with easy access to Dufief Park and Muddy Branch Stream and trails, while modern conveniences are only minutes away. You’ll have to come and see this beautiful home to enjoy all that it has to offer.
©2026 Bright MLS, All Rights Reserved. IDX information is provided exclusively for consumers' personal, non-commercial use and may not be used for any purpose other than to identify prospective properties consumers may be interested in purchasing. Some properties which appear for sale may no longer be available because they are for instance, under contract, sold, or are no longer being offered for sale. Information is deemed reliable but is not guaranteed accurate by the MLS or Jennifer Ciorrocco | Coastal Life Realty Group. Some real estate firms do not participate in IDX and their listings do not appear on this website. Some properties listed with participating firms do not appear on this website at the request of the seller. Data last updated: 2026-04-20T23:52:23.127.
